0
Skip to Content
Home
Contact
Open Menu
Close Menu
Home
Contact
Open Menu
Close Menu
Home
Contact
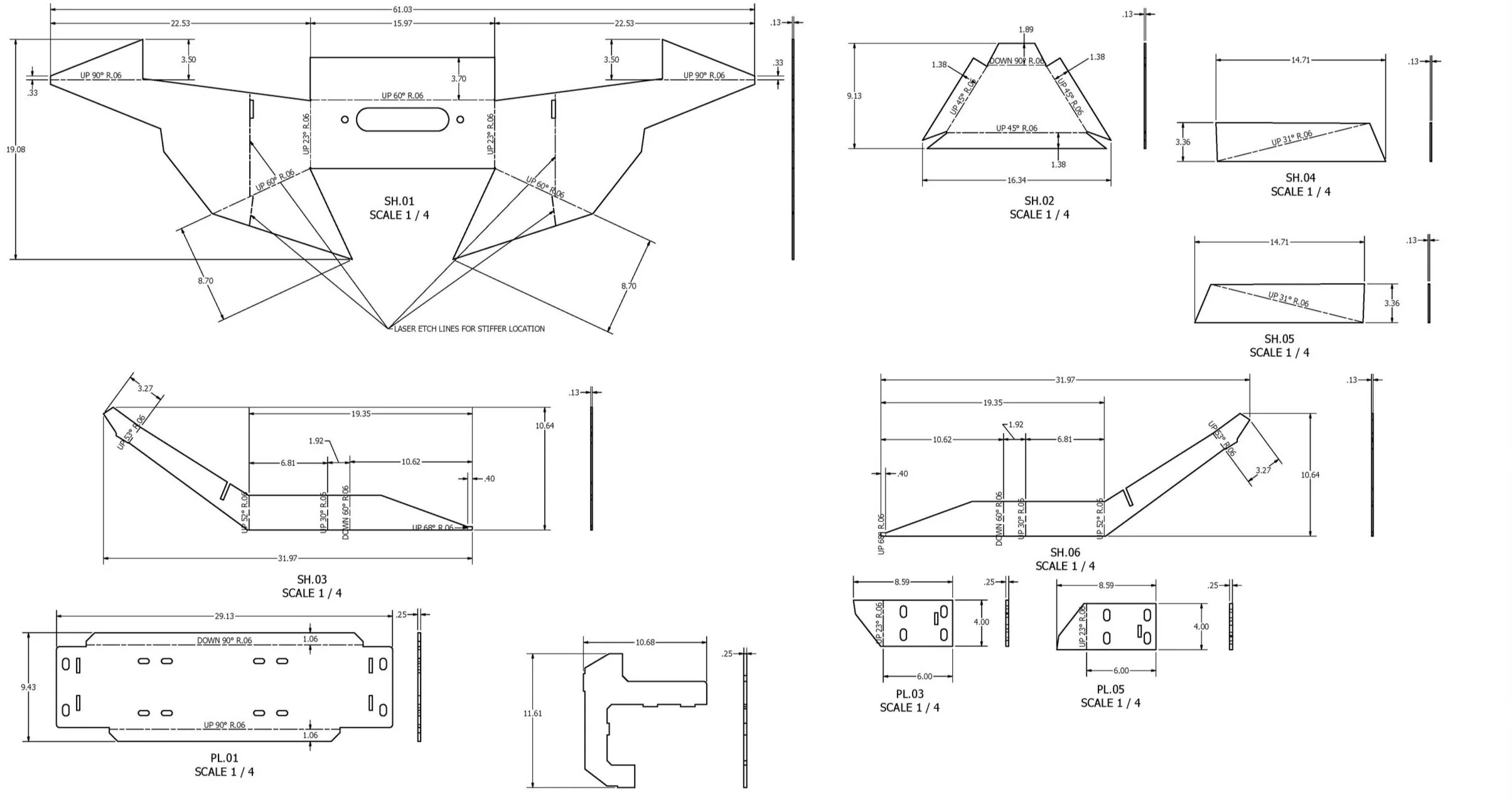
In this project I created OEM Jeep front bumper from a 3d scan we took of the frame and body.